Büroeinheit | ca. 197 m² | STÖRTEBECKER-HAUS | Provisionsfrei
20537 Hamburg, Bürofläche zur Miete
Kontaktdaten
-
NameHerr Maximilian Mnich
-
AnschriftBallindamm 39
20095 Hamburg -
E-Mail
-
Telefon
Objektdaten
-
Objekt-ID325 (1/325)
-
ObjekttypenBüro/Praxis, Bürofläche
-
Adresse20537 Hamburg
Hamburg -
Bürofläche ca.197 m²
-
Gesamtfläche ca.197 m²
-
Baujahr2005
-
Zustandmodernisiert
-
Ausstattunggehoben
-
KautionKaution erforderlich.
-
Preisauf Anfrage
Objektbeschreibung
Beschreibung
Büroflächen:
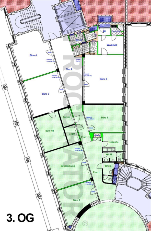
3. OG / ca. 197,79 m²
Austattung:
- hanseatischer Traditionsbau (7-geschossig)
- exklusiver Eingangsbereich
- Aufzüge vorhanden
- ruhiger Innenhof mit Brunnen
- großzügige Raumaufteilung
- lichtdurchflutete Büroflächen
- lärmschützende Verglasung
- teilweise Bodentanks
- elektrischer Sonnenschutz
- teilw. mit Dusche
- Hausmeisterservice im Haus
- Stellplätze können optional angemietet werden
Sonstiges
Für Rückfragen und Besichtigungen stehen wir Ihnen gern zur Verfügung. Senden Sie uns ganz einfach eine Anfrage – per E-Mail, telefonisch oder über den Rückrufwunsch auf unserer Website. Ihre unverbindliche Kontaktaufnahme ist jederzeit willkommen.
1. Kontakt:
Procurator Immobilienmanagement
Telefon: 040 18200256
E-Mail: info@procurator.hamburg
Website: http://www.procurator.hamburg
2. Hinweis zu Objektanfragen:
Anfragen dieser Art können im Zusammenhang mit unseren Inseraten nicht bearbeitet werden:
- Events und Veranstaltung (Filmdreh, Hochzeiten, Konzerte u.Ä.)
- Fitness-Studios und Sportstätten (Padel-Sport, Tennis- und Golfclubs u.Ä.)
- Religiöse Vereinigungen
- Errichtung von PV-Anlagen
- Wohnzwecke
Die von uns vermarkteten Immobilien sind ausschließlich für Lager-, Logistik- und Produktionszwecke vorgesehen, ermöglichen aber je nach Objekt auch weitere gewerbliche Nutzungen.
3. Energieausweis:
Liegt nicht vor / befindet sich in Erstellung.
4. Hinweis für provisionspflichtige Objekte:
Sofern ein Objekt nicht ausdrücklich als provisionsfrei gekennzeichnet ist, wird bei Abschluss eines Hauptvertrages gemäß unseren Allgemeinen Geschäftsbedingungen eine Provision zuzüglich gesetzlicher Mehrwertsteuer fällig. Unsere allgemeinen Geschäftsbedingungen finden Sie unter: http://www.procurator.hamburg/agb oder im Exposé.
5. Hinweis zu unseren Inseraten:
Alle Flächenangaben wurden sorgfältig recherchiert, erfolgen jedoch ohne Gewähr und dienen ausschließlich unverbindlichen Informationszwecken. Illustrationen und Pläne sind beispielhaft und nicht verbindlich. Alle Angaben beruhen auf Informationen Dritter; eine Haftung für deren Richtigkeit und Vollständigkeit wird ausgeschlossen. Irrtum sowie Zwischenverkauf oder -vermietung bleiben vorbehalten. Es gelten unsere Allgemeinen Geschäftsbedingungen.
Lage
Das Objekt befindet sich am Südrand des Hamburger Zentrums in einem neu entwickelten Geschäftsviertel, an der Kreuzung Süderstraße/Borstelmannsweg. Obwohl es nicht in den hochpreisigen Innenstadtlagen liegt, überzeugt es dennoch durch seine günstige Verkehrsanbindung. Über die nahegelegenen Hauptverkehrsadern Heidenkampsweg und Amsinckstraße sind die Elbbrücken und die Autobahnen in etwa drei Minuten mit dem Auto erreichbar, während die Innenstadt nur zehn Minuten entfernt liegt. Auch die B5/Eiffestraße bietet eine schnelle Verbindung zur Autobahn A24 und ins Stadtzentrum.
Die Anbindung an den öffentlichen Nahverkehr ist hervorragend: Direkt vor dem Gebäude befindet sich eine Bushaltestelle der Linie 112, und zusätzlich sind die U-Bahn-Stationen "Burgstraße", "Hammer Kirche" und "Rauhes Haus" in der Nähe. Ein direkter Buspendelverkehr sorgt zudem morgens und abends für eine schnelle Verbindung zu den U-Bahn-Stationen und dem Hauptbahnhof.
20537 Hamburg, Hamburg, Deutschland (auf Google Maps ansehen)








